Vanjski crtež
  • Kontejnerska kuća od čelične konstrukcije
  • Kontejnerska kuća od čelične konstrukcije
  • Kontejnerska kuća od čelične konstrukcije
  • Kontejnerska kuća od čelične konstrukcije
  • Kontejnerska kuća od čelične konstrukcije
Primjene i prednosti
  • 1. Može se slobodno podizati, fiksirati i kombinirati.

  • 2. Jednostavan za premještanje, transport i pranje.

  • 3. Vijek trajanja: 30 godina.

  • 4. Dobra hidroizolacija, zvučna izolacija, toplinska izolacija i ekološka zaštita okoliša.

  • 5. Izgled je prilagođeni dizajn.

  • 6. Međunarodni standardi mogu se koristiti za druge kontejnere za pomorski prijevoz.

  • 7. Lijep izgled s različitim bojama.

Često postavljana pitanja
  • Nakon što vam pošaljemo upit, koliko je vremena potrebno da dobijemo odgovor?

    Odgovorit ćemo vam unutar 12 sati nakon primitka upita radnim danom.

  • Jeste li izravni proizvođač ili trgovačko poduzeće?

    Imamo tvornicu za preradu i također imamo vlastiti odjel međunarodne trgovine. Proizvodimo i prodajemo vlastite proizvode.

  • Koje proizvode možete ponuditi?

    Možemo ponuditi kućice za kontejnere, kućice za proširene kontejnere, sklopive kontejnere i druge proizvode.

  • Koja su glavna područja primjene vaših proizvoda?

    Uglavnom nudimo kontejnerske kuće za stambene i uredske svrhe, kao i sveobuhvatne uredske zgrade, kolektivne spavaonice i projektne uredske kontejnerske kuće za gradilišta kao što su stambena izgradnja, podzemne željeznice, komunalno inženjerstvo, željeznice, autoceste, zelenilo, tvornice i škole.

  • Možete li izraditi proizvode po mjeri?

    Da, možemo izraditi proizvode po mjeri. Razvijamo i proizvodimo proizvode na temelju crteža ili uzoraka koje dostavljaju kupci.

  • Kako vaša tvrtka osigurava kvalitetu proizvoda?

    Prvo, nakon svakog procesa provodimo odgovarajuće inspekcije. Za konačni proizvod provodimo punu inspekciju prema zahtjevima kupaca i međunarodnim standardima.

Strukturni dijagram
  • Kontejnerska kuća od čelične konstrukcije
  • Kontejnerska kuća od čelične konstrukcije
  • Kontejnerska kuća od čelične konstrukcije
  • Kontejnerska kuća od čelične konstrukcije
  • Kontejnerska kuća od čelične konstrukcije
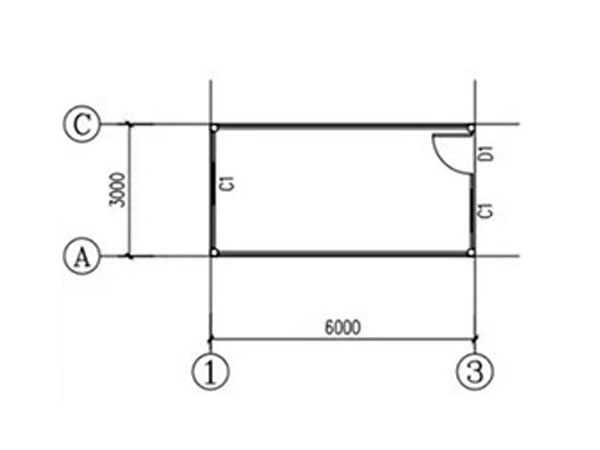
Presjeci i tlocrti
  • Kontejnerska kuća od čelične konstrukcije
  • Kontejnerska kuća od čelične konstrukcije
Povratne informacije
O nama
Suzhou Shengshan Prefabricated Housing Manufacturing Co., Ltd
Suzhou Shengshan Prefabricated Housing Manufacturing Co., Ltd
Suzhou Shengshan Prefabricated Housing Manufacturing Co., Ltd Mi smo profesionalno poduzeće specijalizirano za istraživanje, razvoj, proizvodnju i prodaju montažnih mobilnih kućica od čeličnih limova. S jakim timom za istraživanje i razvoj te dugogodišnjim iskustvom u industriji, u mogućnosti smo razvijati i proizvoditi visokokvalitetne proizvode na temelju crteža ili uzoraka koje dostave kupci. Naš profesionalni inspekcijski tim rigorozno kontrolira kvalitetu kako bi se osiguralo da svaki proizvod koji napušta tvornicu zadovoljava visoke standarde. Kina Kontejnerska kuća od čelične konstrukcije Dobavljači, graditelji i veletrgovci Kontejnerska kuća od čelične konstrukcije izvoznici. Suzhou Shengshan Prefabricated Housing Manufacturing Co., Ltd Rigorozno provjeravamo i revidiramo dobavljače sirovina te provodimo postupke ulazne inspekcije i usporedbe kako bismo osigurali kvalitetu sirovina. Koristimo najsuvremeniji dizajn i kontrolu proizvodnog procesa, čineći svaku seriju proizvoda stabilnijom i sljedivijom, postižući učinkovitu kontrolu proizvodnje. Nadalje, strogo pratimo kvalitetu svake serije proizvoda u skladu sa standardima dobavljača, osiguravajući izvrsnu stabilnost proizvoda.
Potvrda o časti
  • Čast
  • Čast
  • Čast
  • Čast
  • Čast
  • Čast
  • Čast
  • Čast
Vijesti